容積液封式水表(銅殼)PD97TRP-(15~40)E

用 途:用來記錄流經自來水管道飲用冷水的總量(也可用于純凈水)。 工作條件: *水壓:不小于1.6MPa *水溫:不超過50℃ 特 點: *始動流量低 *可于任何位置安裝,如水平,垂直等 * 旋轉活塞式,可靠性高。 * 精確度高 * 全銅表殼 * 根據需要可配有遠傳發訊裝置。 *本水表技術參數符合ISO 4064國際標準和GB/T778-2007國家標準。 示值誤差限: 從分界流量到過載流量為±2%; 從最小流量到分界流量(不包括分界流量)為±5%. 參數尺寸 SPECIFICATION AND OVERAL DIMENSIONS
|
名稱 Description |
單位 Unit |
技 術 參 數 與 尺 寸 HYDRAULIC DATA AND DIMENSIONS |
|
公稱口徑 Nominal Size |
mm(inch) |
DN15(1/2) |
DN20(3/4) |
DN25(1) |
DN32(1-1/4) |
DN40(1-1/2) |
|
過載流量 (Q4) ERROR LIMIT ±2% |
m3/h |
3.125 |
5 |
7.875 |
12.5 |
20 |
|
常用流量 (Q3) ERROR LIMIT ±2% |
m3/h |
2.5 |
4.0 |
6.3 |
10 |
16 |
|
分界流量 (Q2) ERROR LIMIT ±2% |
l/h |
25 |
40 |
63 |
100 |
160 |
|
最小流量 (Q1) ERROR LIMIT ±5% |
l/h |
15.6 |
25 |
39.4 |
62.5 |
100 |
|
最小讀數MIN.READING |
l |
0.05 |
0.05 |
0.05 |
0.5 |
0.5 |
|
最大讀數MAX.READING |
m3 |
9999.9999 |
9999.9999 |
9999.9999 |
99999.999 |
99999.999 |
|
最大工作壓力 MAP |
MPa |
1.6 |
1.6 |
1.6 |
1.6 |
1.6 |
|
壓損 △P AT Q3 |
MPa |
≤0.063 |
≤0.063 |
≤0.063 |
≤0.063 |
≤0.063 |
|
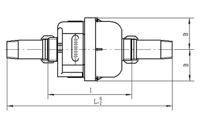
L |
mm |
195 |
267 |
319 |
384 |
428 |
|
I |
mm |
115 |
165 |
199 |
260 |
300 |
|
B |
mm |
43 |
43 |
53 |
60 |
77 |
|
重量 WEIGHT |
不帶連接件 WITHOUT CONNECTIONS |
Kg |
1.14 |
1.56 |
2.48 |
3.47 |
5.65 |
|
帶連接件 WITH CONNECTIONS |
Kg |
0.97 |
1.3 |
2.05 |
2.75 |
4.7 |
外形尺寸 OVERALL DIMENSIONS
流量誤差曲線 FLOW-ERROR CURVE 壓力損失曲線 PRESSURE LOSS CURVE

|