容積干式水表(塑殼)PD98TAR-15E/H
普通表型號:PD98TAR-15E/A(立方米計量) 遠傳表型號:PD98TAR/LA-15E/G
PD98TAR-15E/H(升計量)
用 途:用來記錄流經自來水管道飲用冷水的總量。此表廣泛應用在國內直飲水(純凈水)的計量上。
工作條件:
*水壓:不大于1.0MPa
*水溫:不超過50℃
特 點:
*旋轉活塞式
*直讀計數器
*磁力傳動并防磁
*可在任意位置安裝
*結構堅固。
* 本水表技術參數符合ISO4064國際標準和GB/T778-2007國家標準。
示值誤差:
從分界流量到過載流量為±2%;
從最小流量到分界流量(不包括分界流量)為±5%.
遠傳表說明:
此表脈沖當量可實現0.1升/雙脈沖、1升/雙脈沖等,可根據客戶需要設計生產不同脈沖當量和發訊元件的遠傳水表。
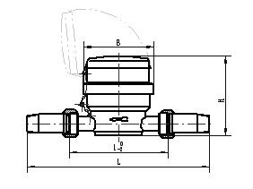
性能參數和尺寸 PERFORMANCE AND DIMENSIONS
|
名稱 Description
|
單位
Unit
|
技 術 參 數 與 尺 寸
HYDRAULIC DATA AND DIMENSIONS
|
|
公稱口徑 Nominal Size
|
mm(inch)
|
DN15(1/2)
|
|
過載流量 (Q4) ERROR LIMIT
|
m3/h
|
1.25
|
|
常用流量 (Q3) ERROR LIMIT
|
m3/h
|
1.0
|
|
分界流量 (Q2) ERROR LIMIT
|
l/h
|
10
|
|
最小流量 (Q1) ERROR LIMIT
|
l/h
|
6.25
|
|
始動流量Strat flow-rate
|
l/h
|
≤2
|
|
最小讀數 Min. Reading
|
l
|
0.005
|
|
最大讀數 Max. Reading
|
m3
|
9999.99999
|
|
最大工作壓 MAP
|
MPa
|
1.0
|
|
壓損△P at the Q3
|
MPa
|
≤0.063
|
|
L
|
mm
|
204
|
|
I
|
mm
|
110
|
|
B
|
mm
|
80
|
|
H
|
mm
|
95
|
|
重量
Weight
|
塑殼帶接管 With Unions
|
Kg
|
0.53
|
|
塑殼不帶接管 Without Unions
|
Kg
|
0.29
|
|
不銹鋼殼帶接管
Stainless body with unions
|
Kg
|
0.94
|
|
不銹鋼殼不帶接管
Stainless body without unions
|
Kg
|
0.7
|
外形尺寸 OVERALL DIMENSIONS
流量誤差曲線 FLOW-ERROR CURVE 壓力損失曲線 PRESSURE LOSS CURVE
